Politics & Council
2 January, 2024
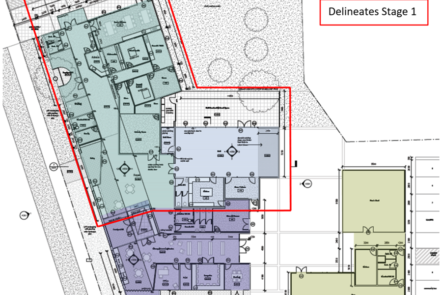
Contract green light for $2.9m centre project
A $2.9 MILLION contract for stage one of the Pyramid Hill Community Centre was announced last Friday. Loddon Shire had awarded the contract during a confidential session of its November meeting. Last week’s announcement also said work on the...

A $2.9 MILLION contract for stage one of the Pyramid Hill Community Centre was announced last Friday.
Loddon Shire had awarded the contract during a confidential session of its November meeting.
Last week’s announcement also said work on the project would start in February. The shire said the “conservative build (was) scheduled for completion mid-2025, subject to material supply and inclement weather”.
The stage will include construction of:
Allied health wing to accommodate Northern District Community Health and maternal child health services;
Senior citizens’ room;
Upgraded toilet facilities;
Renovation of the current hall and kitchen;
Expansion of storage; and
Improved car parking and access to the building.
“The awarding of the contract for Stage 1 of the project is a significant milestone and a wonderful step forward for the construction of this new community facility,” said Mayor Gavan Holt.
“I’d like to thank all those who contributed to getting the Pyramid Hill Community Centre to this Stage 1 construction – including the Pyramid Hill community, Northern District Community Health and a number of other community organisations.
“We look forward to working together with local organisations and the community on the first stage of this major redevelopment.
“In 2019, Council received funding from the Victorian Government for the preparation of a masterplan and feasibility study for the redevelopment of the existing Senior citizens’ building into the Pyramid Hill Community Centre.”
A $200,000 contribution was allocated to the project through the council’s 2021-2022 annual budget process to support the design component of the project. In 2021, Council received funding through the Victorian Government’s Regional Infrastructure Fund for the development of detailed designs for all stages and funding for the construction of Stage 1.
Council last month endorsed a recommendation to contribute $500,000 to the project through council’s Terrick Ward strategic fund.
“Additionally, Loddon Shire Council was invited to submit a funding application to the Australian Government’s Growing Regions Program to deliver the final stage of the community Centre.
The final stage includes the construction of a community wing to accommodate the neighbourhood house, library services and a community gym, with further parking included. “The outcome of this funding submission will be announced around March or April 2024 and if successful, will enable Council to deliver the project in its entirety,” Cr Holt said.